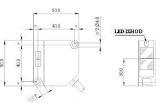
Prenesi PDF Optični senzorji razno ~ Tipalo S6-1-C200 RELE 3 A NO+NC Slika: Shema: Električna shema: Lastnost Vrednost Proizvajalec ne proizvaja več DA Zamenjava z izdelkom Q50I8/0T-0A Dimenzija 50 X 50 X 18 mm Preklopna razdalja Sn [mm] 10 - 2000 Napajalna napetost AC Napajalna napetost U[V] 15-264 V AC Lastna raba Io[mA] 40 mA Maksimalni tok I[mA] 3000 mA Material ohišja ABS plastika Oblika ohišja Kvader Dimenzija ohišja (L) 50 mm Mehanska zaščita IP 65 Priklop 2m PVC Temperatura območje delovanja - 25°C do + 55 °C Frekvenca preklopa [f] 16 Hz Zaščita zamenjave polov Vgrajena LED funkcija DA Izvedba optike RAVNA Način delovanja temno/svetlo-prevodni Svetloba oddajnika Infrardeča 880nm Nastavitev razdalje DA Odzivni čas 30 ms Zamenjava z aktualnim izdelkom